衛信醫療辦公樓裝修設計
客戶簡介
衛信醫療科技有限公司是一家集研發、生產、銷售為一體的現代化先進醫療器械制造企業。公司專注于生物制品、醫療器械、體外診斷試劑領域。
項目地址
上海市徐匯區環貿廣場
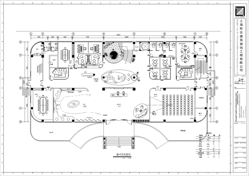
前廳

茶室

接待區

經理室

董事長室

會議室

多功能室

休閑區

展廳

平面圖



公司:上海羚志建筑裝飾工程有限公司
電話:021-63062826
手機:13636677297
Q Q:329358021
郵箱:lingzhibd@163.com
網址:http://www.1noo.com.cn
地址:上海市嘉定區葉城路565號隆慧大廈9F
衛信醫療辦公樓裝修設計
客戶簡介
衛信醫療科技有限公司是一家集研發、生產、銷售為一體的現代化先進醫療器械制造企業。公司專注于生物制品、醫療器械、體外診斷試劑領域。
項目地址
上海市徐匯區環貿廣場
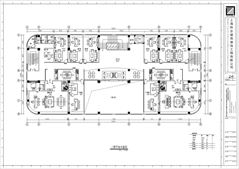
前廳

茶室

接待區

經理室

董事長室

會議室

多功能室

休閑區

展廳

平面圖


免費設計 免費報價